

お電話でのお問い合わせ
042-521-0700
埼玉県で営業倉庫をお探しなら
川越物流センター
埼玉県川越市に位置する営業倉庫です。2Fフロア一部にて空調設備が有り、温度管理製品への対応が可能です。有効高、1階2階共6.0m以上、2階は柱を少なくしており保管効率、レイアウト自由度の高い倉庫となっております。またピロティタイプのトラックバースは全天候対応となっており、入出荷の業務以外にも流通加工専用フロアを備えております。自社システム開発WMSにて、ピース単位、ケース単位、パレット単位での保管が可能です。倉庫賃貸借、業務委託どちらもご相談可能となっております。
Use case
ご活用例
拠点集約のメリット
① コスト削減
- 固定費削減(賃料・光熱費・維持費)
- 人件費最適化(管理業務の統合)
- 設備投資の効率化(自動化投資の集中)
② 在庫効率向上
- 在庫のプーリング効果
- 過剰在庫削減
- 欠品リスク低減
- 在庫回転率向上
③ オペレーション強化
- 業務標準化
- IT活用の高度化(WMS等)
- 生産性向上
④ マネジメント・戦略面
- KPI一元管理
- 意思決定迅速化
- サプライチェーン最適化
留意点
輸送距離増加/BCPリスク集中/移行コスト発生

拠点分散のメリット
① サービスレベル向上
- 顧客への近接配置が可能
- リードタイム短縮
- 当日・翌日配送対応力向上
- 地域密着型サービス強化
② 輸送コスト最適化
- ラストワンマイルコスト削減
- 長距離幹線輸送の分散
- 燃料費・時間コスト低減
※特に小売・ECでは効果大
③ BCP(事業継続)強化
- 災害・事故時のリスク分散
- 1拠点停止時も他拠点で代替可能
- サプライチェーン断絶リスク低減
④ 需要変動への柔軟対応
- 地域別需要差への対応
- 繁忙期の局所対応
- 新市場開拓時の
スモールスタート可能
⑤ 組織・雇用面のメリット
- 地域雇用の確保
- 労働力確保リスクの分散
- 地方自治体との関係強化
留意点
在庫効率低下/固定費増加/投資効率低下

| 比較軸 | 集約型 | 分散型 |
|---|---|---|
固定費 |
◎低減 |
△高め |
在庫効率 |
◎プーリング効果 |
△在庫分散 |
輸送距離 |
△長距離化 |
◎短距離 |
リードタイム |
△やや長い |
◎短縮可能 |
BCP耐性 |
△集中リスク |
◎リスク分散 |
自動化投資効率 |
◎高い |
△分散投資 |
ご活用例1
生産工場への原材料供給および完成品保管倉庫
近隣立地で工場⇔倉庫の連携強化、リードタイム短縮
ご活用例2
TC、DC、ベンダー同居型(VMI含む)配送センター
横持輸送コスト、CO2の削減、ジャストインタイム(JIT)の在庫管理、欠品リスクの低減
Access
アクセス
最寄りインターから
- 圏央道「川島IC」より6㎞
- 関越道「川越IC」より10㎞
- 国道254号より3㎞
最寄り駅から
- JR・東武東上線「川越駅」より7㎞
- 西武線「本川越駅」より6.2㎞
東京ロジファクトリーは東京・神奈川・埼玉の16号、圏央道のエリアに集中して拠点を構えるドミナント戦略を展開し、倉庫・人材・車両をエリア内で効率よく運用し物量波動対応をしております。川越物流センターの近隣には、川越第2物流センター、鶴ヶ島物流センター、鶴ヶ島第2物流センターなど、計5拠点の倉庫が半径7㎞内にあります。
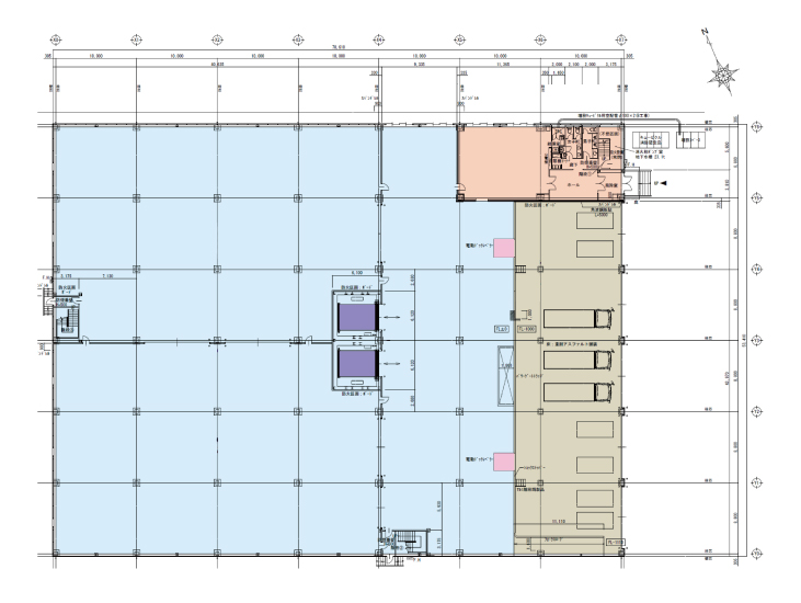
Floor Plan
フロアプラン



- 倉庫エリア
- 事務所
- バース
- 荷物用エレベーター
- ドックレベラー
- 空調導入エリア
川越物流センター
面積表
| 階層 | 倉庫 | 事務所 | バース | 延床面積 |
|---|---|---|---|---|
| 2F | 1,140.81坪 | - | - | 1,140.81坪 |
| 1F | 1,081.88坪 | 58.93坪 | 181.54坪 | 1,140.81坪 |
| 合計 | 2,222.69坪 | 58.93坪 | - | 2,281.62坪 |
Outline
物件概要
| 物件名称 | 東京ロジファクトリー(株) 川越物流センター |
耐荷重 | 1,500㎏/㎡ |
|---|---|---|---|
| 所在地 | 埼玉県川越市芳野台2-8-45 | バースタイプ | 高床式1m |
| 構造・規模 | 鉄骨造 地上2階建 | 庇 | ピロティ式 |
| 敷地面積 | 1,904.50坪 | 荷物用EV | 2基(3.5t) |
| 延床面積 | 2,281.62坪 | ドックレベラ― | 2基 |
| 用途地域 | 工業専用地域 | 荷物用EV | 2基 3.5t 両面 |
| 道路 | 東側9m | 駐車場 | 21台 |
| 有効高さ | 6.0m以上 | 空調 | 2階一部 |
倉庫機能
-
1.0m -
-
2階一部 -
5基 -
2基 -
-
21台 -
3台 -
2基 3.5t 両面
CONTACT
お問い合わせ
東京ロジファクトリー株式会社 川越物流センターについてのお問い合わせは下記メールフォームよりご連絡ください。
必須項目は必ずご入力ください。
スマートフォンで送信エラーが出る場合
- iphoneをご使用の場合
- Safariの設定で「すべてのCookieをブロック」を有効にしてください。
- Androidをご使用の場合
- Chromeの設定で「リダイレクトを許可」、「Cookieをブロック」を有効にしてください。

